top of page
SICORAX FORUM
Promotora & Constructora

PRÒXIMA PROMOCIÓ
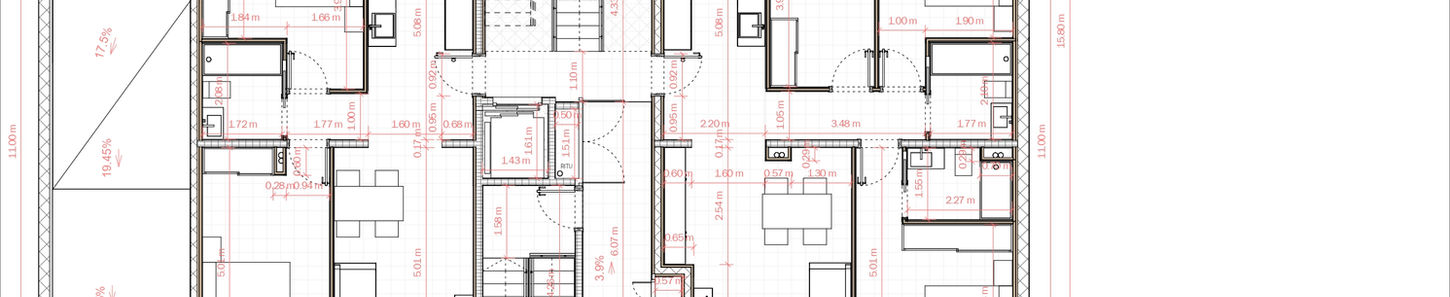
7 HABITATGES ENTRE MITGERES
Al cor de Sant Pere de Vilamajor, presentem una propera promoció de 7 pisos en edifici plurifamiliar, ideal tant per a parelles com per a famílies. Els habitatges tindran superfícies d'entre 68m² i 115m², cosa que permet escollir segons les necessitats de cada comprador.
La planta baixa serà perfecta per als que busquen comoditat i accés directe sense escales, mentre que les plantes superiors oferiran llum natural, amplitud i vistes clares. Una oportunitat única per estrenar llar en una zona en creixement, en un habitatge eficient, modern i ben ubicat.
bottom of page













